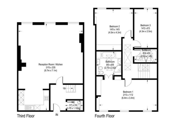
Presented in excellent decorative order throughout, this wonderful apartment is arranged over the top two floor of an impressive, white stucco fronted period building.
The lower floor boasts a fabulous reception room, ideal for entertaining with three large floor to ceilings windows into a bright southerly aspect, a fully integrated Bulthaup kitchen with Gaggenau appliances and breakfast bar and WC. The bedroom accommodation is laid out over the upper floor which comprises, a large principal bedroom with excellent storage space and en-suite bathroom, two further double bedrooms and an additional bathroom with a bath. The property further benefits from hard wooden flooring, a large hallway with a utility cupboard and an abundance of natural light throughout. Lancaster Gate is a highly sought after location, moments from the Italian Gardens in Hyde Park and unrivalled transport links at Lancaster Gate tube (Central Line), Bayswater (District Line/Circle Line) and Paddington (Bakerloo Line, Hammersmith & City Line, Elizabeth line, National Rail, and the Heathrow Express) is also a short stroll away. There is a wealth of fashionable restaurants, artesian cafes and boutique shops on Connaught Village and Westbourne Grove close by.
Compare listings
Compare